Overview
- Updated On:
- June 16, 2022
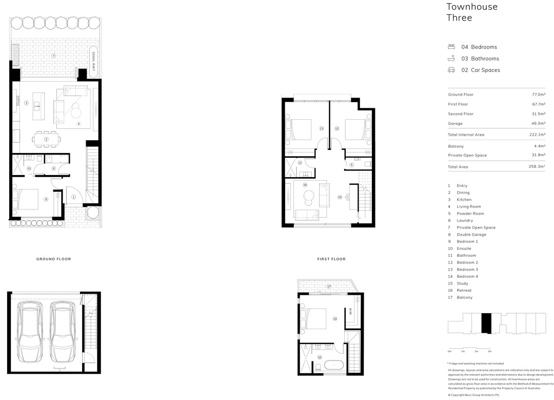
- 4 Bedrooms
- 3 Bathrooms
- Year Built: 2022-07-30
Nằm ở trung tâm Đông Nam của Melbourne, dự án Ivori cung cấp 8 căn nhà phố tuyệt vời.
Mỗi ngôi nhà đều toát lên vẻ sang trọng và tinh tếtừ bên trong một khung cảnh đầy cây lá. Không gian rộng rãi cân đối và hoàn thiện cao cấp
đảm bảo mọi chi tiết tại Ivori đã được xem xét cẩn thận bởi studio kiến trúc hàng đầu, Mezz Group.
Cuộc sống yên bình trôi chảy liên tục từ trong ngôi nhà của bạn đến nét cổ kính và khung cảnh thanh bình xung quanh vùng Glen Iris.
Nơi đây cung cấp cuộc sống dễ dàng với hàng loạt các công viên cực đẹp. Là một khu vực có lịch sử sôi động, giàu có
, có mọi thứ bạn có thể cần chỉ cách đó một đoạn tản bộ ngắn.
Nhà phốlấy cảm hứng từ những ngôi nhà cổ xung quanh và các ví dụ hiện có về nghệ thuật trang trí kiến trúc nổi bật rải rác xung quanh Glen Iris. Mặc dù có thiết kế hiện đại nhưng Ivori hài hòa trong cảnh quan đường phố hiện có và bày tỏ lòng kính trọng đối với những ngôi nhà di sản xung quanh.
Mỗi căn nhà có một lối đi riêng có cảnh quan dọc theo mặt bên của tòa nhà. Mỗi ngôi nhà đã được trang bị một garage đôi an toàn trong nhà, không gian dưới lòng đất, cung cấp rất nhiều không gian cho bạn chứa bất cứ thứ gì cần thiết.
Mỗi cấp độ tương phản về mặt kết cấu, tạo ra tác động trực quan phong phú làm toát lên vẻ sang trọng hiện đại. Các mặt tiền bao gồm một bảng vật liệu đơn giản của đá travertine, kết xuất của nghệ nhân và các chi tiết kim loại. Thiết kế kiến trúc của Ivori mang đến sự tinh tế đương đại cho khu phố cổ kính nhưng vẫn hài hòa với những ngôi nhà di sản xung quanh.
Hiện dự án chỉ còn 2 căn duy nhất
T03: $1.89M và T04: 1.85M (xem bản vẻ chi tiết đính kèm)
Để biết thêm chi tiết về tiến độ thanh toán và hợp đồng hãy liên lạc ngay với Agent của chúng tôi
- Principal and Interest
- Property Tax
- HOA fee













